
ARCH-KREJCI
Menu
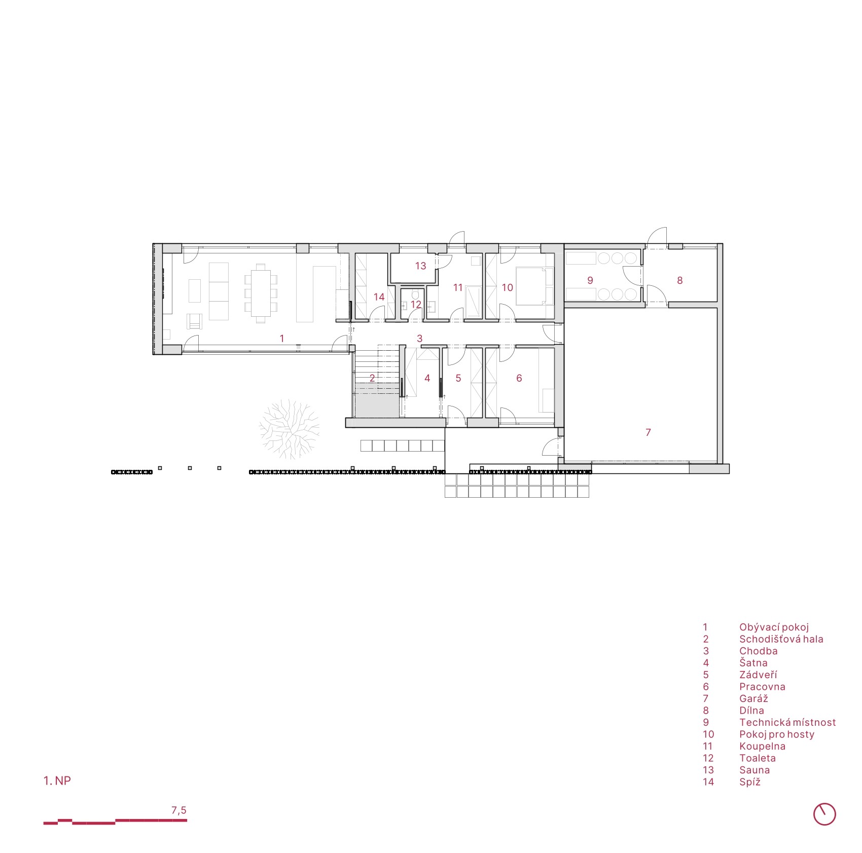
Rodinný dům Letkov
Rodinný dům Letkov
Rodinný dům
Územní regulativy
Odstupová vzdálenost lesa
Prosklené obytné plochy
Atrium na prosvětlení sluncem
Výhledy do údolí
Dřevěné prvky
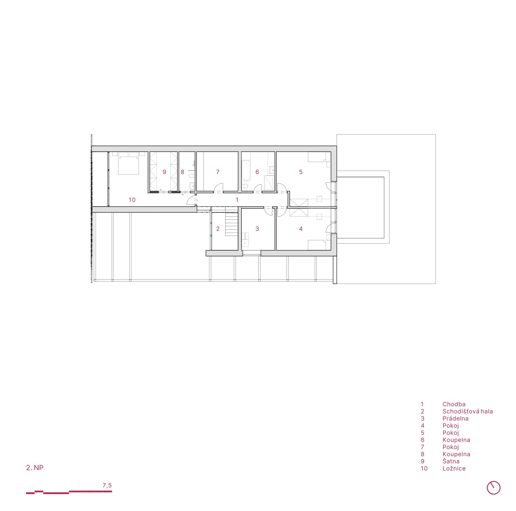
Rodinný dům
Územní regulativy
Odstupová vzdálenost lesa
Prosklené obytné plochy
Atrium na prosvětlení sluncem
Výhledy do údolí
Dřevěné prvky
Rok
Rok
2023
2023
2023
Klient
Klient
Soukromý
Soukromý
Soukromý
Role
Role
Architekt studie
Architekt studie
Architekt studie


Residenční stavby
Residenční stavby







